Work in Progress: West Lake Hills Black and Gold Condo

This condo project for our senator client has been delayed some and so we likely will not have the after photos for you until early next year. We would, however, like to share our fantastic space plans that better utilize the living room and bedroom spaces. All projects should start with a good space plan to assure that all of the furniture functions optimally and fits properly. Scale and proper clearances are critical to proper design. One of the biggest mistakes I see when coming to new client's homes is furniture that is too over-scaled for their space or that they have too much furniture in a space. I am all for maximizing space with functional furniture but not to the point that the feel of the room is compromised.  

As you will tell from this before picture our client's TV was too large for the area that it's located. Also, when you walked into his home the first thing you saw was the back of a TV.  He wanted to move the TV over the fireplace, but in this case the TV was also too over-scaled to go there. I am not a big fan of TVs over fireplaces anyway, so I was kind of glad to hear that. This often causes them to be installed too high for comfortable viewing and it takes away from the look of the fireplace as a beautiful focal point.  

Our client paid a lot for his TV and so did not want to get rid of it for a smaller unit. Our solution was to create two separate focal points in the room with the TV on one end and the fireplace on the other. The adjacent wall was plenty large enough to accommodate the TV. Our plan is to also take down the pony wall dividing the entrance from the living to create more of a bench height height wall. This will open up the area to not only make the condo feel more spacious but to also allow the beauty of the main rooms in the condo to be taken in as soon as you enter the door.  

 
 
 
 

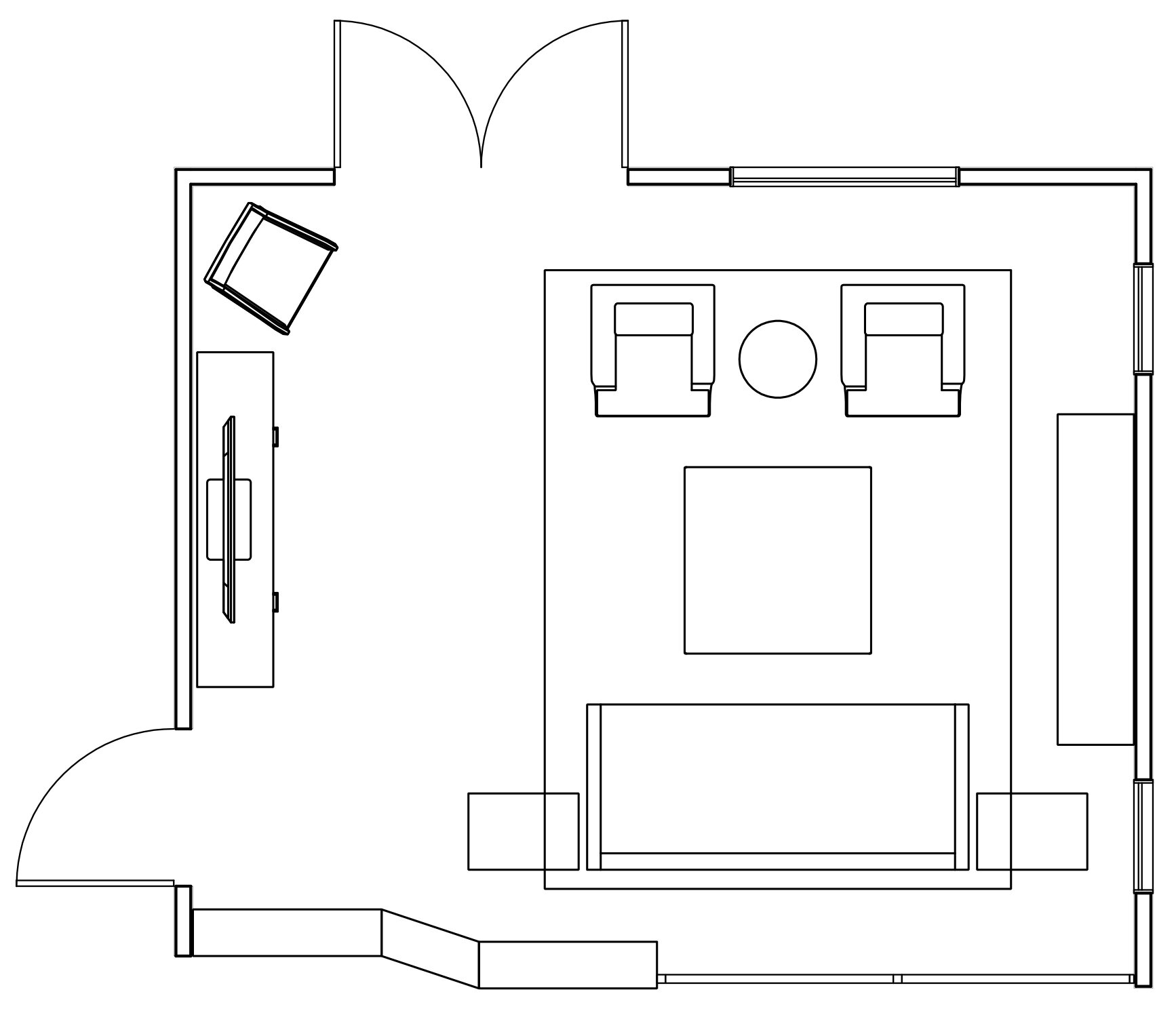
The master bedroom is huge, and his current furniture seems to rattle around in the large space. Our client loves to read and has a few bookcases in his living room currently, but since they are on the wall where the new TV stand will be going, we suggested moving the bookcases into the bedroom, along with a small seating area, to create a comfortable place for him to read that will allow him to further enjoy his bedroom, and allows us to utilize the entire space in a functional way:

 
 
 
 

Designing spaces you love to live in,

 

 
Yian Q

Since 2015, I have helped over 100 interior designers, builders, builders, and architects – from those just starting out to award-winning designers published in Architectural Digest, Luxe, and more.

My process starts with what is already true within you, then brings it to life in a way that resonates with your ideal clients.

I work with designers because they’re awesome. I’m a member of IDS (Interior Design Society) and served on the board of the Virtual Chapter. Design events I’ve attended include High Point, Vegas Market, and BOLD Summit (Business of Luxury Design).

When I’m not creating brands and websites, you can find me listening to audiobooks and going on long speed walks with friends.

I’m from Seattle and now live in New York City with my wife, Gaby.

https://theartofyou.co
Previous
Previous

TexasLiving Magazine Feature!

Next
Next

Custom Pillows for a New York City High-Rise